Roncesvalle

Rescuing projects, delivering results

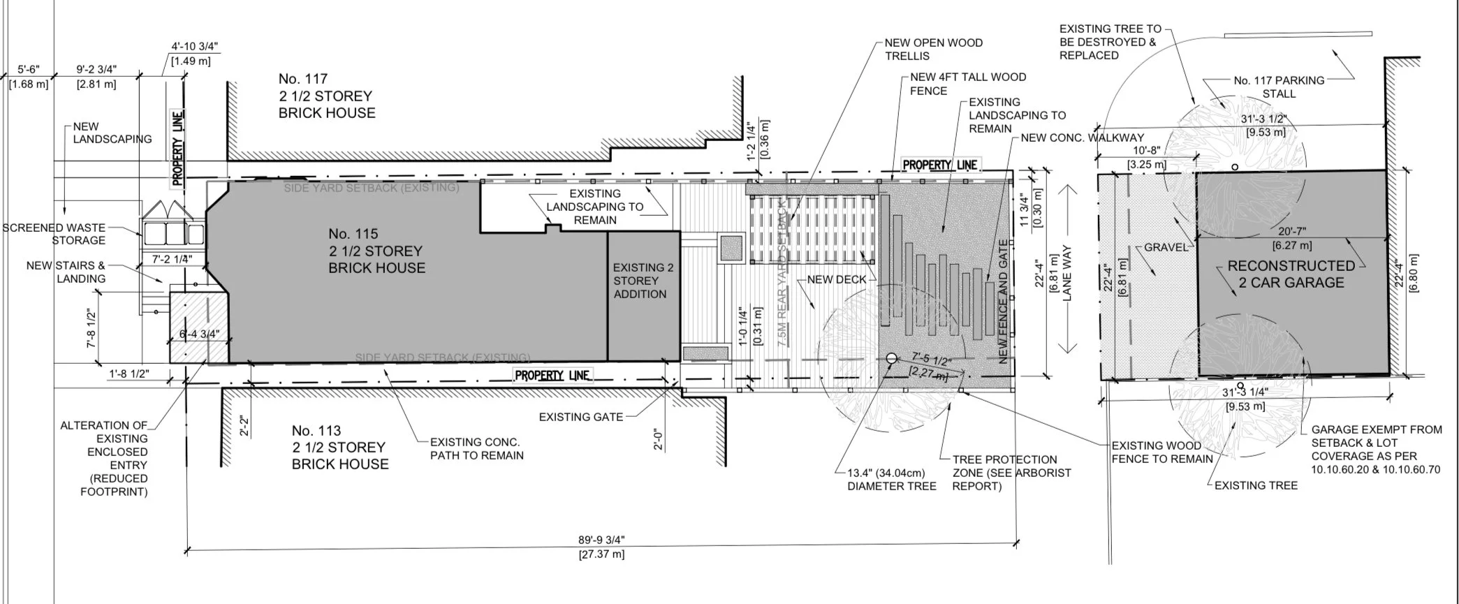
We stepped in to take on a challenging rescue project for a family in need of a functional outdoor space that fit their lifestyle. From fixing the mistakes of a previous contractor to rebuilding a welcoming entrance and a backyard tailored to their growing family, we managed every step of the process. The result is a space that perfectly blends modern aesthetics with the warmth of home, providing long-term value and daily enjoyment.

Designed by Reign Architects